
Construction drawings Plans & Building Code, Planning & Zoning
Consultation: Residential, Commercial & Industrial
Committee of Adjustment & TLAB
- New Homes, Interior alterations & Renovations, Additions, Change Use: Convert one residential to 1, 2 or 3 Units
Retail Store to Restaurant & others uses.
Others: Garages, Carport, Basements Walkouts, Underpinning, Convert crawlspace to basement, Decks, Porch, Pergola, Gazebo
Structural, Plumbing, Electrical & Demolition drawing plans Visit on site to verify construction accord building permit plans & Zoning By-law & Ontario Building Code
Reports: Site visit & Ontario Building Code
BLDG. SECTION A-A
253 John St. North York On.
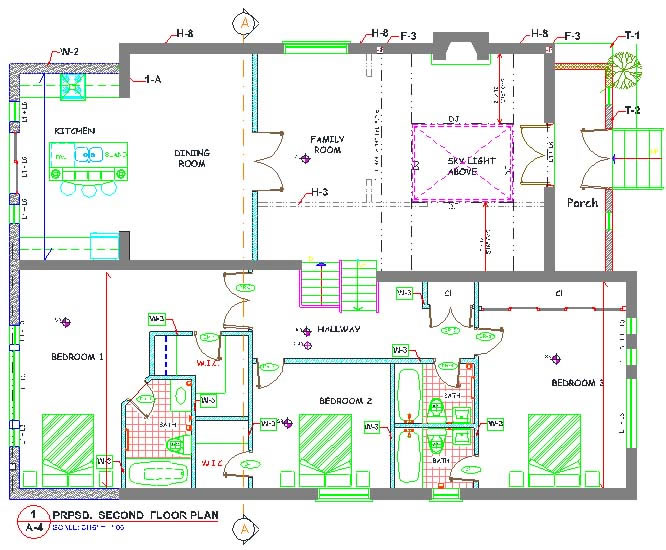
SECOND FLOOR PLAN
REAR ELEVATION