Building Permit Consultants was established in 1990. We provide complete construction permit drawings & offers architectural and construction consulting services for builders, subcontractors, attorneys, insurance carriers and individual owners in the following areas:
Evaluation and planning, design development.
Residential, Commercial & Industrial construction drawings.
Change Use: Residential, Commercial and Industrial buildings.
Planning & Zoning Review and Assessment.
Measured & Drawings as existing built.
Ontario Building Code Consulting and reports. Preliminary review,
Committee of Adjustment. TLAB (Toronto Local Appeal Body)
Architectural, Structural, Electrical & Plumbing drawing plans
Residential: Preliminary Design Concepts. Construction drawings, Interior alterations, Opening Space Concept, Additions, renovations & New Homes.
Commercial: Floor Plans, Space Plans, Layouts. (change of use).
Industrial: High, Medium and Low Hazard Industrial occupancies Mechanical Body Shop, Mechanical Repairs Shop, Mechanical Rental & Sales, Paint spray booth and others.
Construction drawings Plans: Residential, Commercial & Industrial Consultation for Building Code and Zoning by-law Committee of Adjustment & TLAB & Pla
Change Use: Convert one residential to 1, 2 or 3 Units, Retail Store to Restaurant & From Groups D and E to Group F and others uses.
Site visit & Reports:
Visit on site to verify construction accord building permit plans & Zoning By-law & Ontario Building Code & Layout planning Reports: Site visit & Ontario Building Code Part 3, 9, 10 & 11
Planning, Scheduling in Construction Management:
Planning and scheduling of construction activities helps contractors and owners to complete the project in time and within the budget.
Others: Plans for: Garages, Carport, Basements Walkouts, Underpinning, Convert crawlspace to basement, Decks,
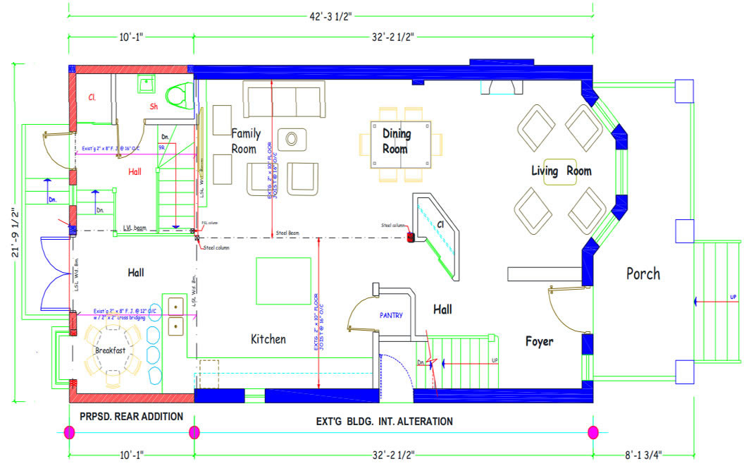
PROPOSED GROUND FLOOR PLAN
227 FERN AV. TORONTO, ON
RIGHT ELEVATION PLAN